Torre De La Horadada (Spanje) | ref. 18404
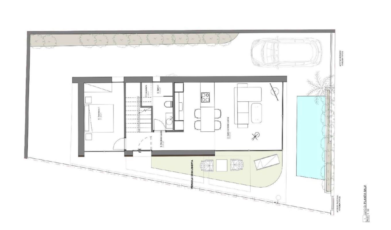
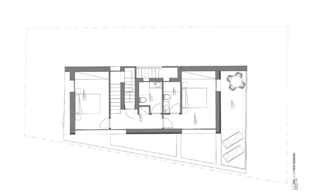
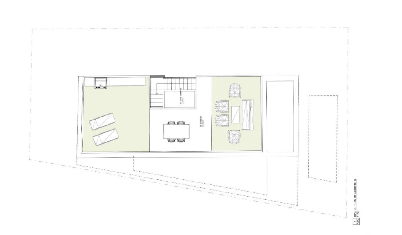
Sleutelklare laatste villa beschikbaar! We brengen deze 4 exclusieve luxe vrijstaande villa's met privézwembad en solarium vandaag op de markt, een nieuw niveau van woningen in de prachtige omgeving van Torre de la Horadada, Alicante. Deze prachtige villa's liggen op minder dan 500 meter van het strand! Elke woning bestaat uit een ruime en lichte woonkamer, een moderne open keuken, drie slaapkamers met inbouwkasten, drie badkamers, airconditioning (warm/koud) voorzien in het hele pand, elektrische rolluiken, domoticasysteem, intercomsysteem, aerothermische boiler, een groot dakterras/solarium, een ruime tuin met terras, een privé zwembad en een oprit met parking. Torre de la Horadada is een Spaanse stad gelegen aan de Middellandse Zee en valt onder de jurisdictie van Pilar de la Horadada. Beide steden liggen in het meest zuidelijke punt van de provincie Alicante in het zuidoosten van Spanje en delen daarom een grens met de provincie Murcia. Er zijn verschillende lange witte zandstranden om van te genieten en mooie promenades om te wandelen en/of te fietsen.
Algemene informatie
Financieel
Comfort
Bebouwing
Stedenbouwkundige informatie

.png?format=webp&width=1920&height=auto)

































