Villamartin (Spanje) | ref. 18423
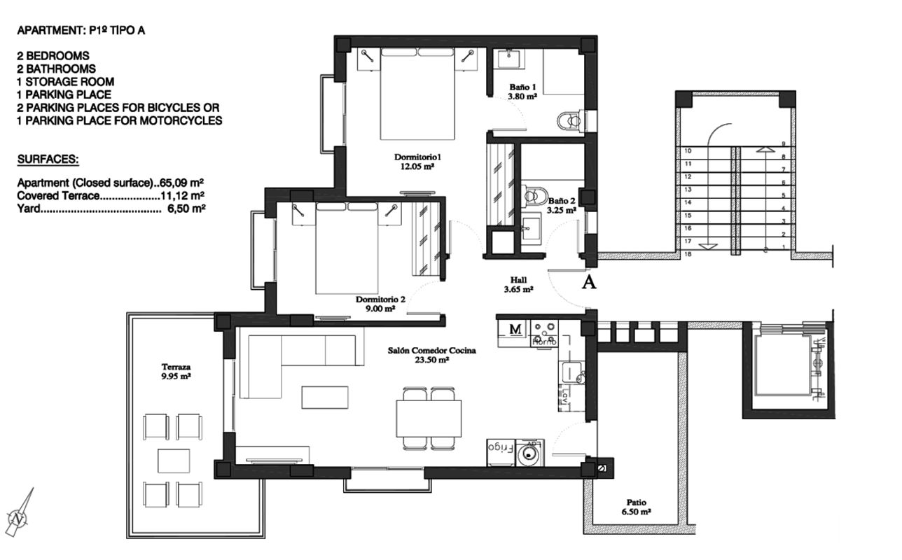
Nieuwbouwproject met slechts 8 appartementen, verdeeld over 4 verdiepingen, gelegen in een rustige woonwijk van Villamartin, Alicante. Vlakbij vindt u vier internationale golfbanen (Villamartin-Las Ramblas-Campoamor-Las Colinas), een groot winkelcentrum, diverse witte zandstranden, supermarkten, winkels, bars en tal van restaurants. Er komen 2 appartementen per verdieping met een lift die vanuit de ondergrondse garage naar de bovenste verdieping leidt voor extra gemak bij het uitladen van bagage en het doen van boodschappen. De woning bestaat uit een ruime en open woon-/eetkamer met directe toegang tot het terras, een volledig uitgeruste keuken, een wasruimte/berging, twee slaapkamers met inbouwkasten, twee badkamers (ééntje is en-suite), airconditioning (koeling/verwarming) voorzien in de gehele woning, een parkeerplaats voor een auto, 2 parkeerplaatsen voor fietsen of 1 motor en een berging in de ondergrondse garage. Op slechts een paar minuten lopen vindt u een ruime selectie aan bars, restaurants en winkels en op slechts 3 minuten rijden van zowel het winkelcentrum La Fuente als het beroemde Villamartin Plaza. Het complex is volledig omheind en biedt een prachtig gemeenschappelijk zwembad, omgeven door aangelegde gemeenschappelijke tuinen.
Algemene informatie
Financieel
Comfort
Bebouwing
Stedenbouwkundige informatie

.png?format=webp&width=1920&height=auto)







